Sector:
Residential Accommodation
Client:
Tailored Solutions
Architect:
Private
Modular manufacturer / Builder:
Abode Group
Structural / Dfma Engineer:
Simon McCarthy
Project Manager:
-
Frame TYPE:
Volumetric Modular
Floor Area:
2300 sqm
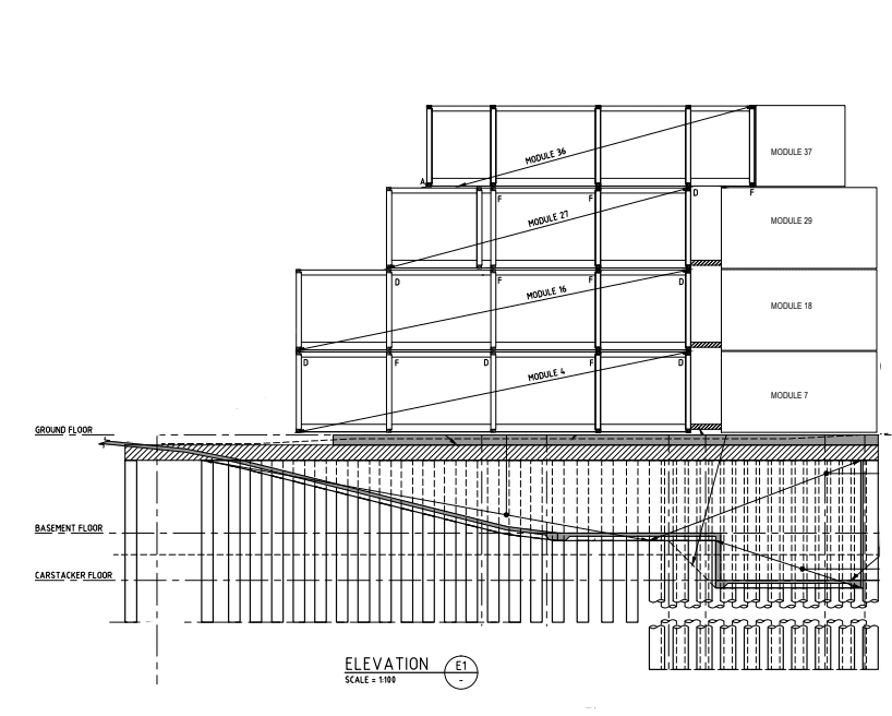
Rise in Storeys:
4 (above basement carpark)
No. Of Modules:
38 (28 apartments)
BUDGET:
$Undisclosed
YEAR COMPLETED:
2016
Schedule:
August 2014 - May, 2015
Design:
5 months
Manufacture:
5 months
Assembly:
2 days
Distance From Factory To Site:
8,900km
Four storey apartment building in Carnegie, VIC. Manufactured by Australian company at modular facility in Tianjin, China. Time saving with concurrent construction (excavate basement while modules were being manufactured at the same time).







